Subha White Waters
Luxury Resort Theme Farm Villas close to Mariapura Lake and 20 Mins from Banashankari
2, 3 & 5 BHK Farm Villas
Starting Price: ₹ 3.2 Cr All Inclusive
Register Here And Avail The Best Offers!!
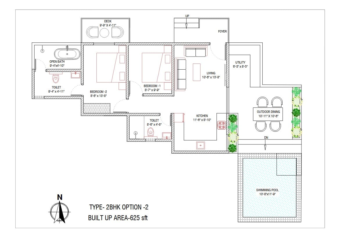
SUBHA WHITE WATERS FLOOR PLAN
At White Waters, architecture is shaped by nature. The farm villa floor plans are designed to maximise openness, privacy, and seamless indoor‑outdoor living while respecting the surrounding ecosystem.
Each villa sits on expansive farmland plots ranging from approximately 7,000 sq.ft. to 19,000 sq.ft., ensuring generous green buffers and visual privacy. Only 15% of each plot is used for construction, while the remaining area is dedicated to personal open space, orchards, and biodiverse landscaping.
Villa Typologies at White Waters
White Waters offers three distinct lakeside farm villa configurations, each with private pools and thoughtfully planned layouts:
2 BHK Farm Villas (TREOW)
Ideal for couples and small families seeking a refined weekend retreat. The layout features open living and dining areas, large decks, garden views, and fluid transitions between indoor and outdoor spaces.
3 BHK Farm Villas (WEALD)
These villas are perfect for families who value space and hosting. Multiple sit‑outs, garden‑facing bedrooms, and expansive living zones create a resort‑like living experience.
5 BHK Farm Villas (LAGU)
These are signature estates crafted for luxury living. Ideal for large families or multi‑generation use, they offer grand living areas, private leisure spaces, and unmatched views of the lake and forest landscape.
Thoughtful Planning Principles
- Large windows and courtyards for cross‑ventilation
- Natural materials that age gracefully
- Privacy‑oriented bedroom placements
- Strong visual connection to greenery and water bodies
- Seamless integration of private pools and gardens
These layouts make White Waters farm villas ideal not only for weekend living but also for extended stays and work‑from‑nature lifestyles.
About Subha Developers
More about the Builder –Subha Developers
Subha Group holds a strong presence in Bangalore with several key projects in the segments of Villa, Apartments, and Land Developments. With the collaboration of these two players, a landmark farm villa project is in the making. Stay tuned for the best close to your city. Subha White Waters is really going to be one of the revolutionary resort-themed villa projects close to Bannerghatta National Park and Kanakapura Road.




